Uster
Neubau und Umbau Bildungszentrum, Uster, Schulhaus für Kantonsschule und Berufsfachschule, Kanton Zürich, Architektur und Generalplanung
Generalplanungsteam
VPA ARCHITEKTUR und Generalplanung
GMS Partner, Baumanagement
ryffel + ryffel, Landschaftsarchitektur
APT, Bauingenieure
GODE, Elektroingenieure
Meierhans + Partner, Heizungs- und Lüftungsingenieure
Bösch, Sanitäringenieure
BAKUS, Bauphysik und Akustik
BUC, Bauökologie und Nachhaltigkeit
Projektbeschrieb
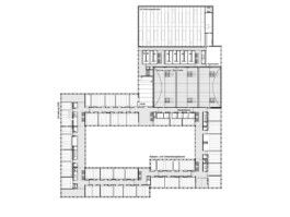
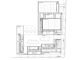
Das neue Bildungszentrum vereint die kantonale gymnasiale und berufliche Bildung unter einem Dach. Teile des Vorgängerbaus aus den 70er und 80er Jahren werden nahtlos integriert. Das Gebäude besteht aus dem Ringtrakt, der den offenen Hof umschliesst, und aus dem angrenzenden Sporttrakt. Drei überdachte Durchgänge vernetzen mit dem Quartier und dem Park. Im Erdgeschoss sind die gemeinsamen Nutzungen wie Mediothek, Mensa und Naturwissenschaften angeordnet. Offene Treppen führen hoch in die beiden Obergeschosse, in denen alle Klassen-, Vorbereitungs- und Verwaltungsräume aufgereiht sind. Die von spannenden Raumfolgen und abwechslungsreichen Blickbeziehungen geprägte ringförmige Erschliessung bietet lichtdurchflutete Begegnungs- und Aufenthaltsbereiche. Die Eingangshalle mit dem opulenten Wandbild, die zweigeschossige, rundum verglaste Mensa mit dem abstrahierten Blätterdach, die ganz mit Holz ausgekleidete Aula und die Mehrzweckhalle mit der offenen Zuschauergalerie aus Sichtbeton bilden differenzierte Höhepunkte. Für das BZU wurde ein raffiniertes Kleid mit hohen Wiedererkennungswert entworfen. Wie gewoben umhüllen präzise gefügte und gekantete, schräg gestellte, spitz zulaufende und seitlich versetzte Fassadenelemente das Gebäude. Elegant metallisch schimmernde Flächen spielen mit Leichtigkeit und Schwere, mit Licht und Schatten und mit den Umgebungsfarben.
Auftragsart
Generalplanung nach offenem Projektwettbewerb, 1. Rang
Kunst im öffentlichen Raum
Eingangshalle Wandbild: Christine Streuli
Aussenraum Säulen: Claudia + Julia Müller
Aufgang Garage Installation:
Cat Tuong Nguyen
Vorraum Aula Film: Klodin Erb
Mediothek Skulptur: Lutz & Guggisberg
Mediothek Bilder klein: Peter Hauser
Mediothek Bilder gross: Laurent Goei
Fotografie
Beat Bühler
Energie und Ökologie
Minergie-ECO Standard mit Ausnahme einer fehlender Lüftung in einigen Altbauräumen. Erneuerbare Energien aus Erdsonden, Abwasser- sowie Photovoltaikanlage mit 360 kWp.
Daten
Fertigstellung 2019
Geschossfläche GF 29 719 m²
Gebäudevolumen GV 128 946 m³
15 000 m³ Beton und 2000 t Armierungsstahl
Kosten (BKP 1–9) inkl. Provisorien CHF 101 500 000













Blick vom Park
Fassadenausschnitt
Fassadenausschnitt
Blick von Park
Blick aus der Mensa
Erschliesssungsraum mit Aufenthaltsqualität
Aula
Erschliessungsraum Sport
Sport- und Mehrzweckhalle
Situation mit Umgebung
Grundriss 1. Obergeschoss
Grundriss Erdgeschoss
Ansichten
Neubau und Umbau Bildungszentrum, Uster, Schulhaus für Kantonsschule und Berufsfachschule, Kanton Zürich, Architektur und Generalplanung
Generalplanungsteam
VPA ARCHITEKTUR und Generalplanung
GMS Partner, Baumanagement
ryffel + ryffel, Landschaftsarchitektur
APT, Bauingenieure
GODE, Elektroingenieure
Meierhans + Partner, Heizungs- und Lüftungsingenieure
Bösch, Sanitäringenieure
BAKUS, Bauphysik und Akustik
BUC, Bauökologie und Nachhaltigkeit
Projektbeschrieb
Das neue Bildungszentrum vereint die kantonale gymnasiale und berufliche Bildung unter einem Dach. Teile des Vorgängerbaus aus den 70er und 80er Jahren werden nahtlos integriert. Das Gebäude besteht aus dem Ringtrakt, der den offenen Hof umschliesst, und aus dem angrenzenden Sporttrakt. Drei überdachte Durchgänge vernetzen mit dem Quartier und dem Park. Im Erdgeschoss sind die gemeinsamen Nutzungen wie Mediothek, Mensa und Naturwissenschaften angeordnet. Offene Treppen führen hoch in die beiden Obergeschosse, in denen alle Klassen-, Vorbereitungs- und Verwaltungsräume aufgereiht sind. Die von spannenden Raumfolgen und abwechslungsreichen Blickbeziehungen geprägte ringförmige Erschliessung bietet lichtdurchflutete Begegnungs- und Aufenthaltsbereiche. Die Eingangshalle mit dem opulenten Wandbild, die zweigeschossige, rundum verglaste Mensa mit dem abstrahierten Blätterdach, die ganz mit Holz ausgekleidete Aula und die Mehrzweckhalle mit der offenen Zuschauergalerie aus Sichtbeton bilden differenzierte Höhepunkte. Für das BZU wurde ein raffiniertes Kleid mit hohen Wiedererkennungswert entworfen. Wie gewoben umhüllen präzise gefügte und gekantete, schräg gestellte, spitz zulaufende und seitlich versetzte Fassadenelemente das Gebäude. Elegant metallisch schimmernde Flächen spielen mit Leichtigkeit und Schwere, mit Licht und Schatten und mit den Umgebungsfarben.
Auftragsart
Generalplanung nach offenem Projektwettbewerb, 1. Rang
Kunst im öffentlichen Raum
Eingangshalle Wandbild: Christine Streuli
Aussenraum Säulen: Claudia + Julia Müller
Aufgang Garage Installation: Cat Tuong Nguyen
Vorraum Aula Film: Klodin Erb
Mediothek Skulptur: Lutz & Guggisberg
Mediothek Bilder klein: Peter Hauser
Mediothek Bilder gross: Laurent Goei
Fotografie
Beat Bühler
Energie und Ökologie
Minergie-ECO Standard mit Ausnahme einer fehlender Lüftung in einigen Altbauräumen. Erneuerbare Energien aus Erdsonden, Abwasser- sowie Photovoltaikanlage mit 360 kWp.
Daten
Fertigstellung 2019
Geschossfläche GF 29 719 m²
Gebäudevolumen GV 128 946 m³
15 000 m³ Beton und 2000 t Armierungsstahl
Kosten (BKP 1–9) inkl. Provisorien
CHF 101 500 000