Blick übers CU Areal mit seinem neuen Schulcampus ↓
Kantons- und Berufsfachschule Uetikon am See, 1. Rang ↓
Blick über die Seestrasse zur Aula ↓
Schulhof ↓
Lernhalle im denkmalgeschützten Kammerofengebäude ↓
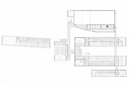
Grundriss Erdgeschoss ↓
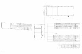
Grundriss 1. Obergeschoss ↓
Grundriss 2. Obergeschoss ↓
Grundriss 3. Obergeschoss ↓
Grundriss 4. Obergeschoss ↓
Grundriss 5. Obergeschoss ↓
Querschnitt Aula und Passarelle ↓
Querschnitt Sport- und Schulräume ↓
Detailschnitt ↓
Modellbild ↓
Modellbild ↓
Modellbild ↓
Modellbild ↓
Uetikon
Neubau und Umbau Schulanlage im CU-Areal in Uetikon am See, Kanton Zürich, Architektur und Generalplanung, 1. Rang
Generalplanungsteam
Ausgangslage
Das Industrieareal CU-Uetikon erfährt eine Transformation in ein lebendiges Quartier am See. Auf dem Areal wird ein neuer Schulstandort mit Kantons- und Berufsfachschulen für bis zu 2000 Schüler und Schülerinnen etabliert.
Städtebau
Das Areal ist Mitte des 19. Jahrhunderts durch Aufschüttungen im Zürichsee entstanden. Die historisch wertvolle, teilweise geschützte Bebauung wird von langgezogenen Gebäuden, die parallel zum Seeufer ausgerichtet sind, und von engen gassenartigen Aussenräumen geprägt. Dieses Bebauungsmuster wird von den Ersatzneubauten aufgenommen. Quer zum Hang bildet die neue Passerelle eine Erschliessungsachse, die von Baumpflanzungen begleitet wird. Der seeseitige Abschluss der Passerelle wird mit dem Neubau der Aula und Mediothek kombiniert, der das Zentrum der Schulanlage bildet. Durch die Anordnung der Aula im Obergeschoss auf Passarellenniveau erhält dieses Gebäude eine angemessene Mächtigkeit.
Passerelle
Die neue Passerelle schafft eine öffentliche Fussgängerverbindung von der Alten Landstrasse über die Geleise und über die Seestrasse hinunter zum See und verbindet zudem die Schulhäuser geschützt miteinander. Sie wird nicht als autonomes, arealfremdes Element ausformuliert, sondern in die offenen Aussenraumstrukturen des MINT-/ Sportgebäudes und des Aula-/ Mediotheksgebäudes integriert. Über grosszügige aussenräumliche Aufweitungen und Vorplätze vor den Eingängen des MINT-Trakts, des Sport-Trakts, des Aula-/ Mediotheksgebäudes und des Kammerofengebäudes werden diese auf Passerellenniveau direkt erschlossen. Diese Vorplätze weisen eine hohe Aufenthaltsqualität auf und laden zum Verweilen ein.
Neubauten im
historischen Kontext
Die Ersatzneubauten nehmen stark Bezug auf die vorgefundenen Typologien, Elemente und Themen der historischen Bestandesbauten und interpretieren diese zeitgenössisch: Sockel, Vordach, vertikale Gliederung in Kollossalordnung sowie die Materialien Holz und Backstein. Die bewusst ruhige und zurückhaltende Gestaltung der Neubauten trägt zur Integration in den historischen Kontext bei. Alt und neu bilden ein spannungsvolles und stimmiges Ensemble. Alle neuen Gebäude weisen vorgelagerte offene Strukturen aus Holz auf, die ihren Ausdruck prägen und die öffentliche Nutzung verdeutlichen. Diese Strukturen bilden gedeckte Aussenräume für die Passerelle und Eingangsbereiche, sorgen im Sommer für Beschattung und nehmen die PV-Fassadenelemente auf. Diese PV-Fassaden im MINT-Trakt und im BZZ sind Teil des Megawatt-Kraftwerks und sichtbares Zeichen der ökologischen und ökonomischen Qualitäten der Schulanlage.
Sorgfältiger Umgang mit den markanten Industriebauten
Zusätzlich zum denkmalgeschützten Kammerofengebäude und zur geschützten Fassade mit Kamin auf der Hangseite der Seestrasse wird auch das Ofengebäude erhalten, welches die Wirkung des Areals vom See her stark prägt.
Die Organisation der neuen Nutzung reagiert sensibel und innovativ auf den Bestand. Im zweischiffigen Kammerofengebäude werden die Schulräume entsprechend der vorhandenen Struktur einbündig angeordnet. Hohe Priorität wird dem der Erhalt der beeindruckenden räumlichen Qualitäten der Hallen beigemessen, die im Erschliessungsbereichen des Kammerofengebäudes, des Sportvorbaus und der Mensa auch zukünftig erlebbar bleiben.
In die Bestandesbauten werden Strukturen aus Holz eingestellt, die auf einer neuen Bodenplatte mit Pfählung aufliegen. Diese Konstruktion stabilisiert das bestehende Tragwerk und nimmt die zusätzlichen Lasten der neuen Nutzung auf. Alle baulichen Massnahmen, auch im Zusammenhang mit den Oberlichtbändern und PV-Anlagen, sind additiv konzipiert und reversibel, wodurch ein uneingeschränkter Erhalt der geschützten Bauteile möglich wird. Die neuen Bauelemente werden zeitgenössisch ausformuliert und suchen eine ruhige und harmonische Gesamtwirkung im Kontext mit den bestehenden Bauteilen. Die eher raue Charakteristik des Bestandes wird aufgenommen und frühere Eingriffe und Brüche können belassen werden.
Die Längsfassaden der Obergeschosse des Kammerofengebäudes werden mit einer vorgelagerten Schicht aus vertikal angeordneten, quergestellten Holzlatten eingekleidet, welche im Bereich der Stützen enger und im Zentrum weiter auseinander angeordnet sind. Dies ermöglicht einen angemessenen Aussenraumbezug und lässt diese Fassaden besonders in der Verkürzung von aussen geschlossener wirken. Der Ausdruck erinnert sowohl an die historischen, nicht mehr vorhandenen Bretterfassaden als auch an die vormals zum Teil noch offenen Hallen. Die inventarisierten Holzkonstruktionen bleiben erhalten und sichtbar und werden von der aussenliegenden hölzernen Lamellenstruktur zusätzlich geschützt.
Energie und Ökologie
Nachhaltigkeit und
Ressourcenschonung
Einen grossen Beitrag leistet das Sonnenkraftwerk, auf den Dächern und integriert in die Neubaufassaden, mit einer Leistung von über einem Megawatt. Die Schulanlage wird Minergie-P ECO zertifiziert und erfüllt zusätzlich die Anforderungen gemäss Nachhaltigkeitsstandard SNB. Die Konstruktionen werden CO2 optimiert und bestehen primär aus CO2 speicherndem Holz. Die Energieversorgung erfolgt CO2- neutral. Die neue Schulanlage schont die Ressource Land.
Daten
Wettbewerb 2022
Fertigstellung 2031
Geschossfläche GF 34 568 m²
Gebäudevolumen GV 174 996 m³
Visualisierungen
indievisual
Blick übers CU Areal
Blick vom See
Blick über die Seestrasse
zur Aula
Schulhof
Lernhalle im denkmalgeschützten
Kammerofengebäude
Grundriss Erdgeschoss
Grundriss 1. Obergeschoss
Grundriss 2. Obergeschoss
Grundriss 3. Obergeschoss
Grundriss 4. Obergeschoss
Grundriss 5. Obergeschoss
Querschnitt Aula und Passarelle
Querschnitt Sport- und
Schulräume
Detailschnitt
Modellbild
Modellbild
Modellbild
Modellbild
Neubau und Umbau Schulanlage im CU-Areal in Uetikon am See, Kanton Zürich, Architektur und Generalplanung, 1. Rang
Generalplanungsteam
Ausgangslage
Das Industrieareal CU-Uetikon erfährt eine Transformation in ein lebendiges Quartier am See. Auf dem Areal wird ein neuer Schulstandort mit Kantons- und Berufsfachschulen für bis zu 2000 Schüler und Schülerinnen etabliert.
Städtebau
Das Areal ist Mitte des 19. Jahrhunderts durch Aufschüttungen im Zürichsee entstanden. Die historisch wertvolle, teilweise geschützte Bebauung wird von langgezogenen Gebäuden, die parallel zum Seeufer ausgerichtet sind, und von engen gassenartigen Aussenräumen geprägt. Dieses Bebauungsmuster wird von den Ersatzneubauten aufgenommen. Quer zum Hang bildet die neue Passerelle eine Erschliessungsachse, die von Baumpflanzungen begleitet wird. Der seeseitige Abschluss der Passerelle wird mit dem Neubau der Aula und Mediothek kombiniert, der das Zentrum der Schulanlage bildet. Durch die Anordnung der Aula im Obergeschoss auf Passarellenniveau erhält dieses Gebäude eine angemessene Mächtigkeit.
Passerelle
Die neue Passerelle schafft eine öffentliche Fussgängerverbindung von der Alten Landstrasse über die Geleise und über die Seestrasse hinunter zum See und verbindet zudem die Schulhäuser geschützt miteinander. Sie wird nicht als autonomes, arealfremdes Element ausformuliert, sondern in die offenen Aussenraumstrukturen des MINT-/ Sportgebäudes und des Aula-/ Mediotheksgebäudes integriert. Über grosszügige aussenräumliche Aufweitungen und Vorplätze vor den Eingängen des MINT-Trakts, des Sport-Trakts, des Aula-/ Mediotheksgebäudes und des Kammerofengebäudes werden diese auf Passerellenniveau direkt erschlossen. Diese Vorplätze weisen eine hohe Aufenthaltsqualität auf und laden zum Verweilen ein.
Neubauten im historischen Kontext
Die Ersatzneubauten nehmen stark Bezug auf die vorgefundenen Typologien, Elemente und Themen der historischen Bestandesbauten und interpretieren diese zeitgenössisch: Sockel, Vordach, vertikale Gliederung in Kollossalordnung sowie die Materialien Holz und Backstein. Die bewusst ruhige und zurückhaltende Gestaltung der Neubauten trägt zur Integration in den historischen Kontext bei. Alt und neu bilden ein spannungsvolles und stimmiges Ensemble. Alle neuen Gebäude weisen vorgelagerte offene Strukturen aus Holz auf, die ihren Ausdruck prägen und die öffentliche Nutzung verdeutlichen. Diese Strukturen bilden gedeckte Aussenräume für die Passerelle und Eingangsbereiche, sorgen im Sommer für Beschattung und nehmen die PV-Fassadenelemente auf. Diese PV-Fassaden im MINT-Trakt und im BZZ sind Teil des Megawatt-Kraftwerks und sichtbares Zeichen der ökologischen und ökonomischen Qualitäten der Schulanlage.
Sorgfältiger Umgang mit den markanten Industriebauten
Zusätzlich zum denkmalgeschützten Kammerofengebäude und zur geschützten Fassade mit Kamin auf der Hangseite der Seestrasse wird auch das Ofengebäude erhalten, welches die Wirkung des Areals vom See her stark prägt.
Die Organisation der neuen Nutzung reagiert sensibel und innovativ auf den Bestand. Im zweischiffigen Kammerofengebäude werden die Schulräume entsprechend der vorhandenen Struktur einbündig angeordnet. Hohe Priorität wird dem der Erhalt der beeindruckenden räumlichen Qualitäten der Hallen beigemessen, die im Erschliessungsbereichen des Kammerofengebäudes, des Sportvorbaus und der Mensa auch zukünftig erlebbar bleiben.
In die Bestandesbauten werden Strukturen aus Holz eingestellt, die auf einer neuen Bodenplatte mit Pfählung aufliegen. Diese Konstruktion stabilisiert das bestehende Tragwerk und nimmt die zusätzlichen Lasten der neuen Nutzung auf. Alle baulichen Massnahmen, auch im Zusammenhang mit den Oberlichtbändern und PV-Anlagen, sind additiv konzipiert und reversibel, wodurch ein uneingeschränkter Erhalt der geschützten Bauteile möglich wird. Die neuen Bauelemente werden zeitgenössisch ausformuliert und suchen eine ruhige und harmonische Gesamtwirkung im Kontext mit den bestehenden Bauteilen. Die eher raue Charakteristik des Bestandes wird aufgenommen und frühere Eingriffe und Brüche können belassen werden.
Die Längsfassaden der Obergeschosse des Kammerofengebäudes werden mit einer vorgelagerten Schicht aus vertikal angeordneten, quergestellten Holzlatten eingekleidet, welche im Bereich der Stützen enger und im Zentrum weiter auseinander angeordnet sind. Dies ermöglicht einen angemessenen Aussenraumbezug und lässt diese Fassaden besonders in der Verkürzung von aussen geschlossener wirken. Der Ausdruck erinnert sowohl an die historischen, nicht mehr vorhandenen Bretterfassaden als auch an die vormals zum Teil noch offenen Hallen. Die inventarisierten Holzkonstruktionen bleiben erhalten und sichtbar und werden von der aussenliegenden hölzernen Lamellenstruktur zusätzlich geschützt.
Energie und Ökologie Nachhaltigkeit und Ressourcenschonung
Einen grossen Beitrag leistet das Sonnenkraftwerk, auf den Dächern und integriert in die Neubaufassaden, mit einer Leistung von über einem Megawatt. Die Schulanlage wird Minergie-P ECO zertifiziert und erfüllt zusätzlich die Anforderungen gemäss Nachhaltigkeitsstandard SNB. Die Konstruktionen werden CO2 optimiert und bestehen primär aus CO2 speicherndem Holz. Die Energieversorgung erfolgt CO2- neutral. Die neue Schulanlage schont die Ressource Land.
Daten
Wettbewerb 2022
Fertigstellung 2031
Geschossfläche GF 34 568 m²
Gebäudevolumen GV 174 996 m³
Visualisierungen
indievisual