Wettbewerb Schulanlage Saatlen, Zürich, 2. Rang ↓
Schulhof als Herz der Anlage ↓
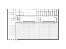
Sport- und Mehrzweckhalle ↓
Schulcluster Primarschule ↓
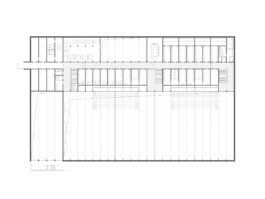
Grundrisse Erdgeschoss ↓
Grundriss Primarschulhaus Regelgeschoss ↓
Grundriss Gemeinschaftshaus 2. Untergeschoss ↓
Grundriss Gemeinschaftshaus 1. Untergeschoss ↓
Grundriss Gemeinschaftshaus Erdgeschoss ↓
Grundriss Gemeinschaftshaus 1. Obergeschoss ↓
Grundriss Gemeinschaftshaus 2. Obergeschoss ↓
Querschnitt mit Schulhof im Zentrum ↓
Ostfassaden ↓
Saatlen
Ersatzneubau Schulanlage Saatlen, Zürich, Stadt Zürich, offener Projektwettbewerb, 2. Rang
Generalplanungsteam
VPA ARCHITEKTUR und Generalplanung
ryffel + ryffel, Landschaftsarchitektur
APT, Bauingenieure
ahochn, HLKS-Planung
GODE, Elektroplanung
Bakus, Bauphysik
Ausgangslage
Die bestehenden Schulhäuser auf dem Schulareal Saatlen erfüllen aktuelle Anforderungen nicht mehr und sind in einem schlechten baulichen Zustand. Deshalb werden sie durch Neubauten mit einer höheren Nutzungsdichte ersetzt. Grosse Teile der Aussenanlagen, insbesondere der wertvolle Baumbestand, bleiben erhalten.
Städtebau
Die neue Schulanlage Saatlen besteht aus vier Baukörpern, die jeweils um 90 Grad gedreht und leicht versetzt zueinander angeordnet sind. Vorspringende Stirnfassaden wechseln mit zurückgesetzten Längsfassaden. Niedrige, eingeschossige Gebäudeteile gehen in bis zu viergeschossige Gebäudeteile über. Die Schulhäuser gruppieren sich um den zentralen, in den Ecken offenen Schulhof. Durch diese städtebauliche Setzung bildet das Ensemble keine abgeschlossene Grossform, sondern einen offenen, mit dem Quartier volumetrisch und aussenräumlich verwobenen Schulcampus. Diese vier Gebäude bilden die Schulhäuser für die Primarschule mit Kindergarten, für die Sekundarschule und für die SKB-Schule. Im vierten Gebäude, dem Gemeinschaftshaus, sind alle gemeinschaftlichen Nutzungen untergebracht. Dank der räumlichen Disposition mit dem durchfliessenden Aussenraum und dem umlaufenden Baumkranz erfüllt die Schulanlage weiterhin ihre Funktion als wichtigen Teil der drurchgrünten Gartenstadt und des geschützten Grünzugs Schörli – Saatlen.
Daten
Jahr 2021
Geschossfläche GF 28 176 m²
Gebäudevolumen GV 122 766 m³
Kosten (BKP 1–9) CHF 156 000 000
Visualisierungen
x-frame und indievisual (Hofbild)
Sekundarschulhaus und
Gemeinschaftshaus
Schulhof als Herz der Anlage
Sport- und Mehrzweckhalle
Schulcluster Primarschule
Grundrisse Erdgeschoss
Grundriss Primarschulhaus
Regelgeschoss
Grundriss Gemeinschaftshaus
2. Untergeschoss
Grundriss Gemeinschaftshaus
1. Untergeschoss
Grundriss Gemeinschaftshaus
Erdgeschoss
Grundriss Gemeinschaftshaus
1. Obergeschoss
Grundriss Gemeinschaftshaus
2. Obergeschoss
Querschnitt mit Schulhof
im Zentrum
Ostfassaden
Ersatzneubau Schulanlage Saatlen, Zürich, Stadt Zürich, offener Projektwettbewerb, 2. Rang
Generalplanungsteam
VPA ARCHITEKTUR und Generalplanung
ryffel + ryffel, Landschaftsarchitektur
APT, Bauingenieure
ahochn, HLKS-Planung
GODE, Elektroplanung
Bakus, Bauphysik
Ausgangslage
Die bestehenden Schulhäuser auf dem Schulareal Saatlen erfüllen aktuelle Anforderungen nicht mehr und sind in einem schlechten baulichen Zustand. Deshalb werden sie durch Neubauten mit einer höheren Nutzungsdichte ersetzt. Grosse Teile der Aussenanlagen, insbesondere der wertvolle Baumbestand, bleiben erhalten.
Städtebau
Die neue Schulanlage Saatlen besteht aus vier Baukörpern, die jeweils um 90 Grad gedreht und leicht versetzt zueinander angeordnet sind. Vorspringende Stirnfassaden wechseln mit zurückgesetzten Längsfassaden. Niedrige, eingeschossige Gebäudeteile gehen in bis zu viergeschossige Gebäudeteile über. Die Schulhäuser gruppieren sich um den zentralen, in den Ecken offenen Schulhof. Durch diese städtebauliche Setzung bildet das Ensemble keine abgeschlossene Grossform, sondern einen offenen, mit dem Quartier volumetrisch und aussenräumlich verwobenen Schulcampus. Diese vier Gebäude bilden die Schulhäuser für die Primarschule mit Kindergarten, für die Sekundarschule und für die SKB-Schule. Im vierten Gebäude, dem Gemeinschaftshaus, sind alle gemeinschaftlichen Nutzungen untergebracht. Dank der räumlichen Disposition mit dem durchfliessenden Aussenraum und dem umlaufenden Baumkranz erfüllt die Schulanlage weiterhin ihre Funktion als wichtigen Teil der drurchgrünten Gartenstadt und des geschützten Grünzugs Schörli – Saatlen.
Daten
Jahr 2021
Geschossfläche GF 28 176 m²
Gebäudevolumen GV 122 766 m³
Kosten (BKP 1–9) CHF 156 000 000
Visualisierungen
x-frame und indievisual (Hofbild)